-
外表環氧樹脂噴涂處理
外表環氧樹脂噴涂處理、噴涂厚度大于250um。
-
焊接方式為滿焊
所有焊接均為滿焊,確保密封性。
-
內壁效圓處理
成型后做內壁效圓處理。
-
同等口徑重量重于其他廠家
法蘭尺寸符合GB/T 12465-2002標準,同等口徑重量重于其他廠家。
-
每個環節層層質檢
從毛坯到成品包裝出廠每個環節層層質檢。
-
兩年內壞一個賠兩個
般德品牌產品國內外各有太平洋保險500萬保額的品質承保(保單號:ATIJ04007120Q000006E),承保范圍29類,共1000余種產品,質保2年,兩年內壞一個賠兩個。
-
-
-
產品優點
產品介紹
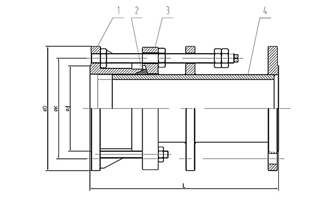
B2F雙法蘭限位伸縮器,管道兩邊使用法蘭連接,安裝在管道上連接閥門、水泵、流量器等設備,既補償了管道的伸縮器,又對閥門等設備的維修提供了方便。雙法蘭限位伸縮節是在松套伸縮接頭原有性能的基礎上增設限位裝置,在最大伸縮量處用雙螺母鎖定。管道在允許的伸縮量中可以自由伸縮,一旦超過其最大伸縮量就起到限位,確保管道的安全運行,特別適用于有振動或有一定斜度及拐彎的管路中的連接。適用于建筑、化工、鋼鐵、自來水、污水處理等單位。
產品參數
B2F 雙法蘭限位伸縮器參數信息
| 閥門執行標準 | 名稱 | 設計及制造 | 結構長度 | 試壓標準 | 法蘭尺寸 | ||||||||
| 參照標準 | GB/T 12465-2002 | GB/T 12465-2002 | GB/T 12465-2002 | GB/T 12465-2002 | |||||||||
| 主要零部件信息 | 名稱 | 1-本體 | 2-密封圈 | 3-壓蓋 | 4-限位伸縮管 | ||||||||
| 材質 | Q235 | 三元乙丙橡膠 EPDM | Q235 | Q235-A | |||||||||
| 尺寸信息 | 公稱尺寸 | PN6/10/16 | PN6 | PN10 | PN16 | ||||||||
| DN | NPS(英寸) | L | δ | ΦD | ΦK | Φd | ΦD | ΦK | Φd | ΦD | ΦK | Φd | |
| 65 | 2 1/2'' | 300 | 25 | 160 | 130 | 110 | 185 | 145 | 122 | 185 | 145 | 122 | |
| 80 | 3'' | 300 | 25 | 190 | 150 | 128 | 200 | 160 | 138 | 200 | 160 | 138 | |
| 100 | 4'' | 300 | 25 | 210 | 170 | 148 | 220 | 180 | 158 | 220 | 180 | 158 | |
| 125 | 5'' | 300 | 25 | 240 | 200 | 178 | 250 | 210 | 188 | 250 | 210 | 188 | |
| 150 | 6'' | 300 | 25 | 265 | 225 | 202 | 285 | 240 | 212 | 285 | 240 | 212 | |
| 200 | 8'' | 300 | 25 | 320 | 280 | 258 | 340 | 295 | 268 | 340 | 295 | 268 | |
| 250 | 10'' | 300 | 25 | 375 | 335 | 312 | 395 | 350 | 320 | 405 | 355 | 320 | |
| 300 | 12'' | 370 | 32.5 | 440 | 395 | 365 | 445 | 400 | 370 | 460 | 410 | 378 | |
| 350 | 14'' | 370 | 32.5 | 490 | 445 | 415 | 505 | 460 | 430 | 520 | 470 | 438 | |
| 400 | 16'' | 370 | 32.5 | 540 | 495 | 465 | 565 | 515 | 482 | 580 | 525 | 490 | |
| 450 | 18'' | 370 | 32.5 | 595 | 550 | 520 | 615 | 565 | 532 | 640 | 585 | 550 | |
| 500 | 20'' | 370 | 32.5 | 645 | 600 | 570 | 670 | 620 | 585 | 715 | 650 | 610 | |
| 600 | 24'' | 370 | 32.5 | 755 | 705 | 670 | 780 | 725 | 685 | 840 | 770 | 725 | |
| 700 | 28'' | 370 | 32.5 | 860 | 810 | 775 | 895 | 840 | 800 | 910 | 840 | 795 | |
| 800 | 32'' | 600 | 65 | 975 | 920 | 880 | 1015 | 950 | 905 | 1025 | 950 | 900 | |
| 900 | 36'' | 600 | 65 | 1075 | 1020 | 980 | 1115 | 1050 | 1005 | 1125 | 1050 | 1000 | |
| 1000 | 40'' | 600 | 65 | 1175 | 1120 | 1080 | 1230 | 1160 | 1110 | 1255 | 1170 | 1115 | |
| 1200 | 48'' | 600 | 65 | 1405 | 1340 | 1259 | 1455 | 1380 | 1330 | 1485 | 1390 | 1330 | |
| 1400 | 56'' | 640 | 65 | 1630 | 1560 | 1510 | 1675 | 1590 | 1535 | 1685 | 1590 | 1530 | |
| 1600 | 64'' | 640 | 65 | 1830 | 1760 | 1710 | 1915 | 1820 | 1760 | 1930 | 1820 | 1750 | |
| 1800 | 72'' | 640 | 65 | 2045 | 1970 | 1920 | 2115 | 2020 | 1960 | 2130 | 2020 | 1950 | |
| 2000 | 80'' | 640 | 65 | 2265 | 2180 | 2125 | 2325 | 2230 | 2170 | 2345 | 2230 | 2150 | |
語言:簡體中文
English
Русский
簡體中文












