-
閥體QT450-10材質,機械性能好
閥體QT450-10材質、球化率3級以上、完全符合QT450機械性能。
-
黃銅材質閥芯,延遲使用壽命
閥芯采用黃銅材質、避免閥桿彎曲,增加了閥門的使用壽命。
-
橡膠密封圈鑲嵌在閥體上,堅固耐用
橡膠密封圈直接鑲嵌在閥體上,避免了介質長時間對密封圈的直接沖刷,使用壽命明顯延長,堅固耐用。
-
殼體按照國家標準制做
每臺閥門出廠均按照國家標準做殼體、密封雙層壓力檢測。
-
層層質檢,確保品質
從毛坯到成品包裝出廠每個環節層層質檢。
-
兩年內壞一個賠兩個
般德品牌產品國內外各有太平洋保險500萬保額的品質承保(保單號:ATIJ04007120Q000006E),承保范圍29類,共1000余種產品,質保2年,兩年內壞一個賠兩個。
-
-
-
產品優點
產品介紹
HC41X-16Q采用符合水力學的輪廓設計取得較佳的流線型水路,內部附有導流體的設計能保證較小的壓力損失,消聲止回閥可在水流倒流前先行快速關閉避免產生水錘、水擊聲和破壞性沖擊以達到消除噪音的效果。該產品具有體積小,重量輕,流體阻力小,耐疲勞,壽命長等優點。應用于給排水系統,高層建筑管網等。
產品參數
HC41X-16Q消聲止回閥參數信息
| 閥門執行標準 | 名稱 | 設計及制造 | 結構長度 | 試壓標準 | 法蘭標準 | |
| 參照標準 | GB/T 12235-2007 | GB/T 12221-2005 | GB/T 13927-2008 | GB/T 17241.6-2008 | ||
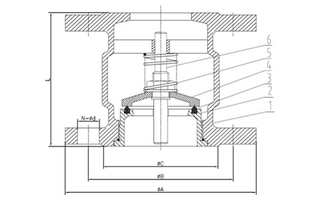
| 主要零部件信息 | 1-閥體 | 2-閥座 | 3-閥座密封圈 | 4-閥瓣 | 5-彈簧 | 6-閥桿 |
| 球墨鑄鐵DI | 黃銅 | 三元乙丙橡膠EPDM | 黃銅 | 304 | 410 | |
| 尺寸信息 | DN | NPS(英寸) | ΦA | ΦB | ΦC | L |
| 40 | 1 1/2'' | 145 | 110 | 84 | 100 | |
| 50 | 2'' | 165 | 125 | 99 | 120 | |
| 65 | 2 1/2'' | 185 | 145 | 118 | 136 | |
| 80 | 3'' | 200 | 160 | 132 | 160 | |
| 100 | 4'' | 220 | 180 | 156 | 180 | |
| 125 | 5'' | 250 | 210 | 184 | 190 | |
| 150 | 6'' | 285 | 240 | 211 | 208 | |
| 200 | 8'' | 340 | 295 | 266 | 275 | |
| 250 | 10'' | 395 | 350 | 319 | 325 | |
| 300 | 12'' | 445 | 400 | 370 | 362 | |
| 350 | 14'' | 505 | 460 | 429 | 533 | |
| 400 | 16'' | 565 | 515 | 480 | 572 | |
語言:簡體中文
English
Русский
簡體中文












